Previous Next

Grove Park Terrace, Grove Park, W4

£1,465,000 Under Offer
Request viewing Email us
  • 3
  • 1
  • 2

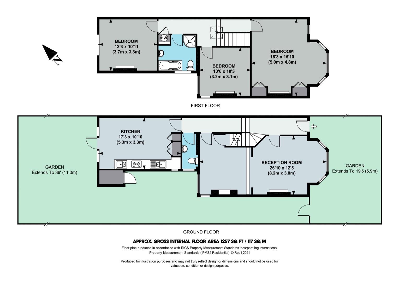
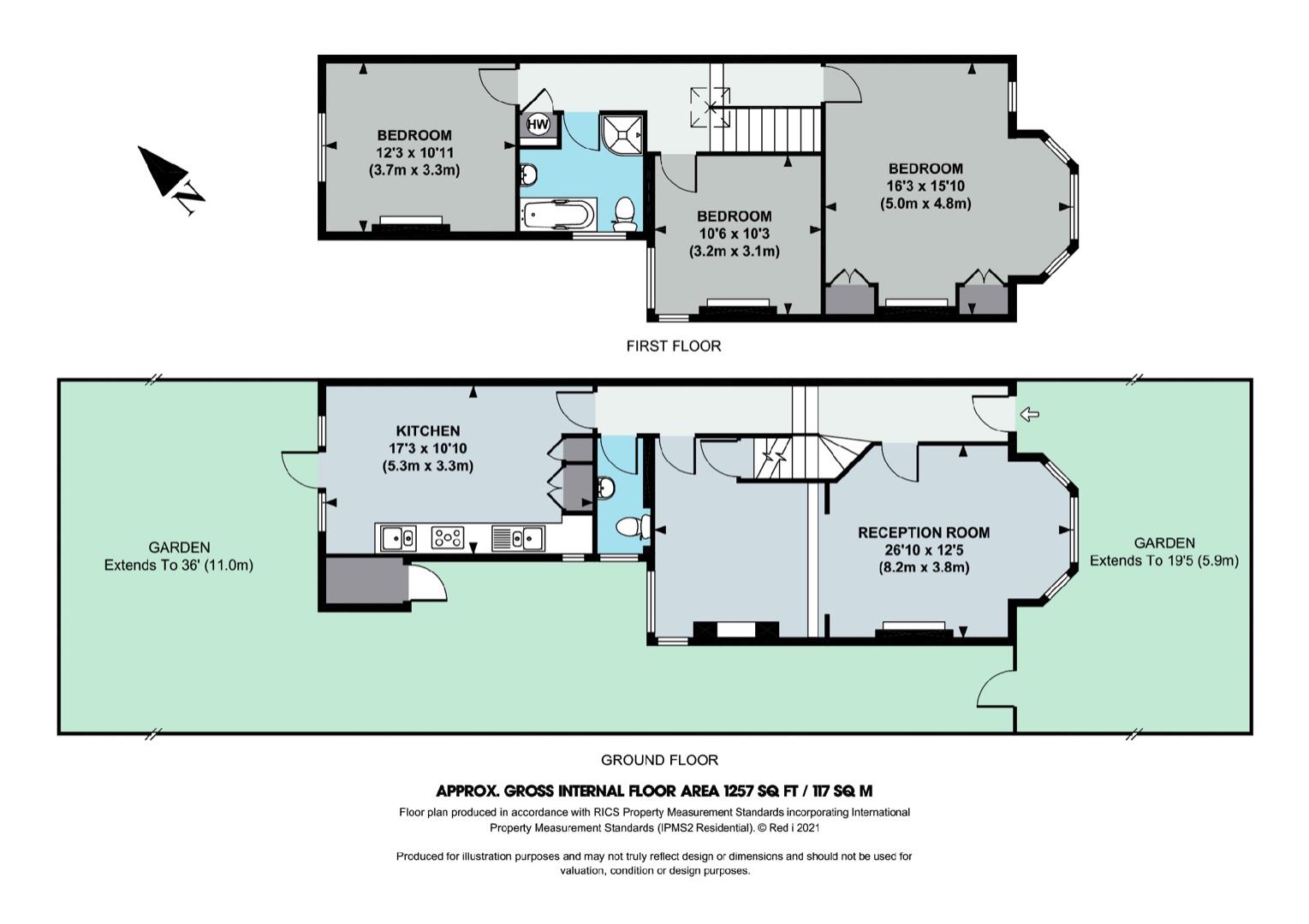
Huge Potential to develop 'Up, Out & Down' (Subject To Usual Consents - STUC) whilst enjoying a well presented, three double bedroom, 1257 Sq Ft / 117 Sq M, end of terrace house that features a 26'10 double reception room, separate kitchen/dining room, cellar, garden and private off street parking space.

As the property benefits from having a side passage that extends to a considerable size at the rear, this gives a pretty unique opportunity to consider side return development to both sides of the house (STUC) that would create a wonderful family room to complement the existing double reception room.

The accommodation currently comprises: entrance hallway, 26'10 double reception room divided over two levels with feature fireplace and bay window, 17'3 kitchen/breakfast room overlooking garden, guest cloakroom and storage cellar.

Stairs to first floor, 16'3 master bedroom with built-in cupboards, fireplace and bay window, 12'3 double bedroom overlooking garden, further 10'6 double bedroom, bathroom with operate shower cubicle and feature roll-top bath.

9'5 front garden incorporating off street parking space for one car and 36' landscaped rear garden with additional side area, brick external boiler/storage cupboard and side access.

Grove Park Terrace is a highly desirable residential location offers a wide selection of local amenities including riverside walks, bistro waterside pubs & restaurants, sports clubs, desirable schools and excellent transport connections into and out of town.

Please note that the images used in this marketing are a combination of visually staged, existing and historic images. The imagery is designed to honestly reflect the usage of the accommodation.

  • Three Double Bedrooms
  • 26'10 Double Reception
  • 17'3 Kitchen / Breakfast room
  • 1257 Sq Ft / 117 Sq M
  • Huge Potential to Extend 'Up, Out & Down' (STUC)
  • Off Street Parking
  • Guest Cloakroom
  • No Forward Purchase Chain
  • Highly Desirable Location
  • Storage Cellar