Previous Next

Thornton Avenue, Central Chiswick, W4

£2,750,000 Sold
Request viewing Email us
  • 5
  • 4
  • 2

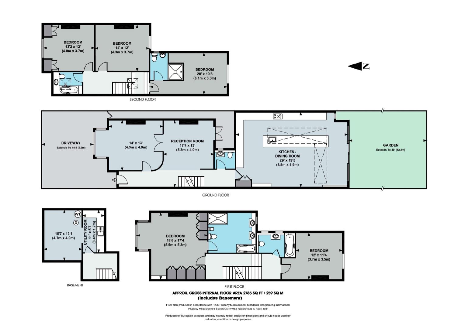
A well presented 2785 Sq Ft / 259 Sq M, centrally located family house that offers the perfect balance of traditional features and contemporary styling.

The house features a double reception, stunning kitchen/family room, off street parking, five bedrooms (formally six), four bathrooms and a 40' south facing garden that enjoys not being particularly overlooked, as the house is ideally located between gardens on Mayfield and Thornton Avenue.

The accommodation comprises: entrance hallway, dramatic double reception room with high ceiling and feature fireplace (decorative only) divided with bi-folding doors into the library/music room, stunning kitchen/family room (extended and built into the side-return), guest cloakroom, partial basement conversion providing 'hat & coat' storage area, utility room and 13'1 general cool storage room.

Stairs to First Floor

Master bedroom suite divided as spacious bedroom with extensive fitted wardrobes and elegant bay window leading to large en-suite bathroom (formally bedroom six) with separate walk-in shower and bespoke twin sink feature. The first floor also offers a double bedroom/study and family bathroom.

Stairs to Second Floor

Well appointed guest bedroom suite/au-pair suite with double bedroom and en-suite shower room, two further double bedrooms and a further family bathroom.

The exterior features a 40' South facing garden with decked patio area, off street parking and a covered side return providing bicycle/amenity storage.

Thornton Avenue is often referenced as the most convenient location in central Chiswick due to its excellent proximity to Chiswick High Road and Turnham Green Terrace that feature a wide variety of boutiques and general shopping, over sixty bistro bars & restaurants and a good selection of transport connections into and out of town.

  • Five Double Bedrooms & Four Bathrooms
  • 30'10 Double Reception
  • Stunning 29' Kitchen | Family room
  • Basement Utility Room | Storage Room
  • 40' South Facing Garden
  • Off Street Parking
  • 2785 Sq Ft / 259 Sq M
  • Excellent Central Location
  • No Forward Chain
  • New To Market | Sole Agents